
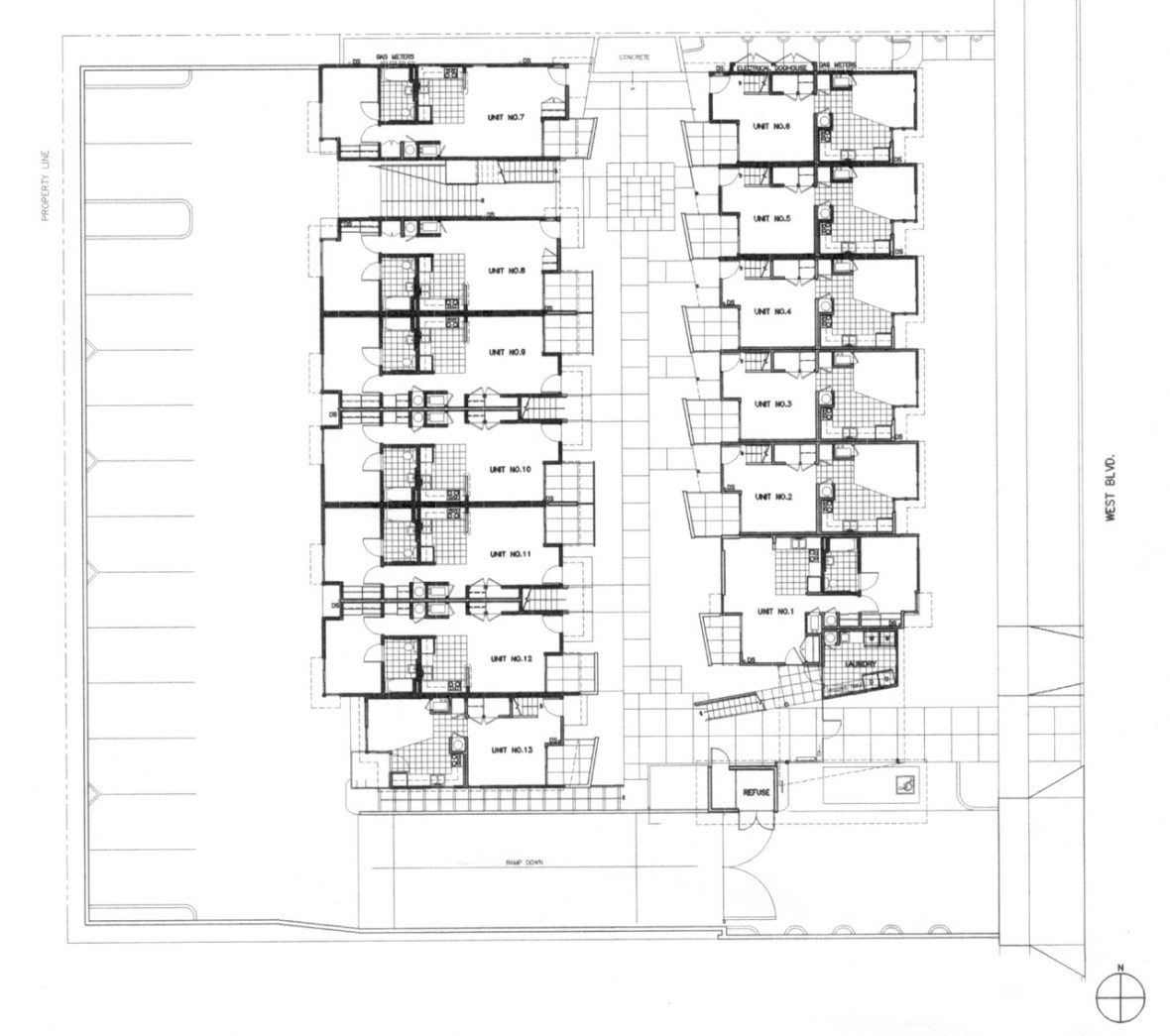
The building is designed to reinforce the context, continue the buildings’ edge along the street, and to respect the adjacent buildings’ heights, stucco materials, and colors. The main entry is covered and celebrated at the scale of the street, and the yellow/red colors and changes in materials (metal roof) reinforce the notion of entry, with a handicap parking space immediately adjacent. Within the building mass is an expression of individual dwelling units, and the corners as building anchors. A mix of dwelling unit types, 2 bedroom townhouses, with 1/2 bedroom apartments, further enriches the project. The courtyard is the central social space, with direct access to all the dwelling units.





