Affordable Senior Housing – West Hollywood, CA

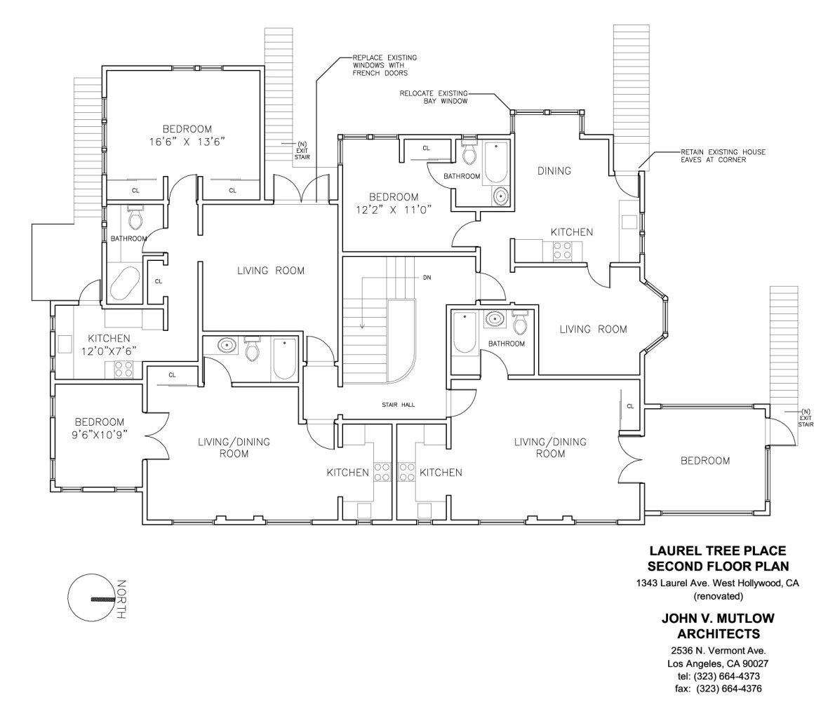
The site for Laurel Place is in a built up residential area and is surrounded by multifamily rentals and condominiums. The grounds surrounding the housing site are being developed into a public park.The predominant design concept is dictated by the need to protect and respect the existing locally designated historic structures and landscaping while creating housing appropriate for use by seniors and disabled persons. The existing house built from 1914 and remodeled into a four unit building in 1941, is a two-story structure with a high roof. The height of the new 3 story building is lower than the roof line of the house and is therefore not predominantly visible from the street. This preserves the scale and mass of the existing conditions. The facade of the new building with oversized silk screen leaves is designed to serve as a quiet stage backdrop for the historic house in the foreground. The courtyard space between the new and existing building is designed as the central social space. The stairs, access balconies and two social balconies all overlook, and therefore engage this courtyard space.




