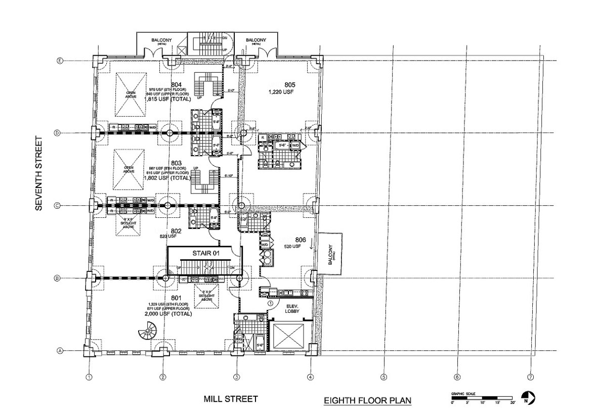
The Walnut is a conversion of an empty nine story former storage and distribution factory/warehouse building for walnuts into a 53 Live/Work unit project with 13 different unit plans, 5 different floor plans a ground floor theme restaurant. The building is potentially a historic structure, so design plans had to be coordinated with the Cultural Heritage Commission.




